Espace propriétaire
fr
Se connecter
Se connecter

Votre recherche

Vendu
Hombourg-Haut (57470)

5 pièces - 97,63 m²

Programme neuf pavillon neuf BBC 5 pièces

Ref : 4019-C
Découvrir le bien
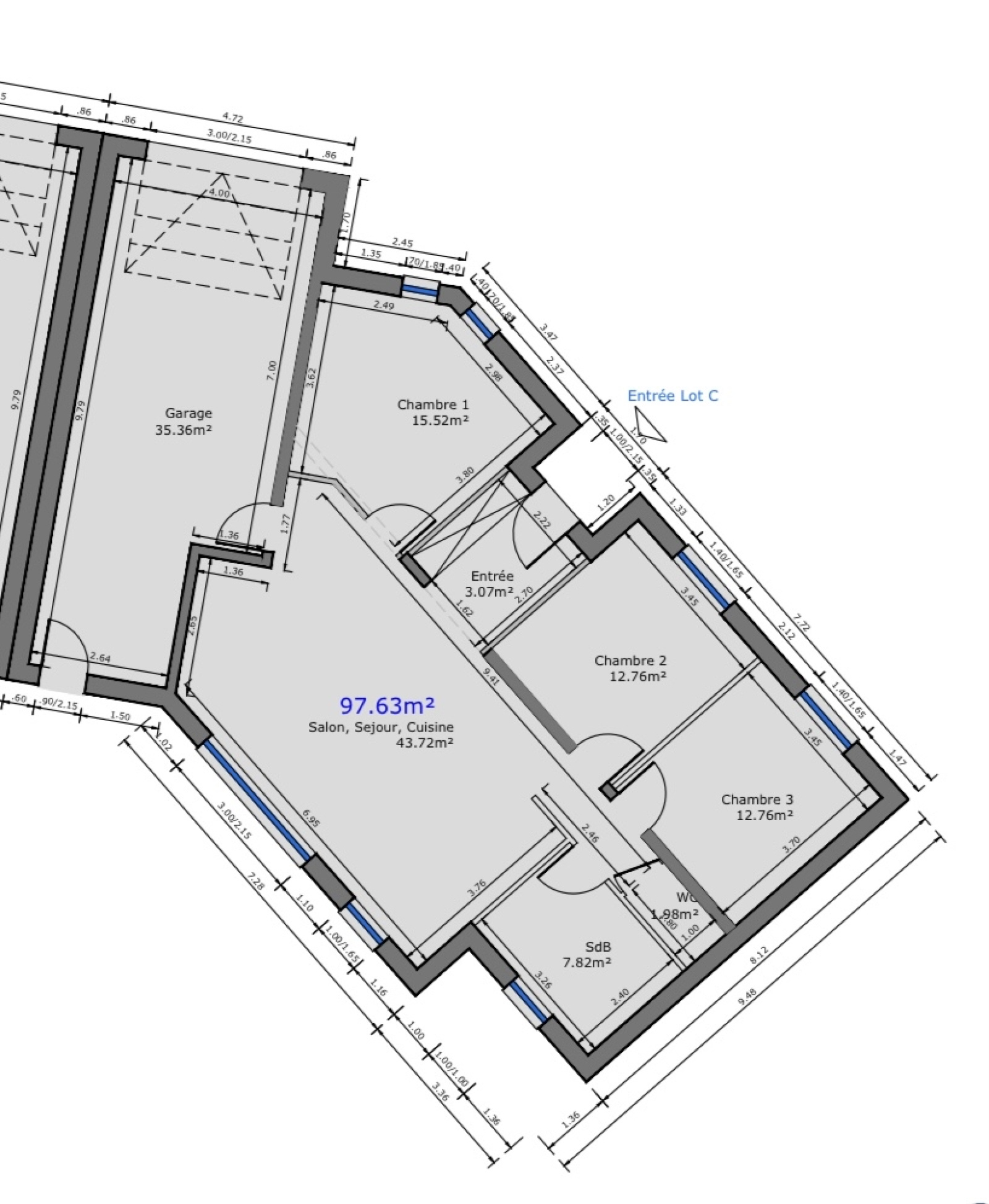
Dans le charmant quartier de la Papiermuhle, venez découvrir en exclusivité ce pavillon neuf de plain pied 97,63m² hab. construit en ossature bois. Entrée, cuisine équipée ouverte sur la pièce de vie lumineuse 43m² pourvue d'un poêle à pellets et donnant accès à la terrasse . Côté nuit, vous disposez de trois chambres. La salle de bains est équipée d'une douche à l'italienne. Le wc est séparé. Le garage d'une surface de 35,36m² permet d'aménager la buanderie et accède à l'extérieur. Le chauffage au sol est assuré par un plancher électrique pour tout confort . Ballon thermodynamique pour la production d'eau chaude. Triple vitrage, volets motorisés. Vous bénéficierez d'un confort optimal en plus de bénéficier des "frais de notaires réduits " soit 2,5%. Côté extérieur, vous profiterez d'une terrasse et d'un jardinet. Sur une parcelle d'environ 424m². "Les informations sur les risques auxquels ce bien est exposé sont disponibles sur le site Géorisques : www.georisques.gouv.fr"
TRAD_ZEPHYR_Caracteristique TRAD_ZEPHYR_Valeurs
Code postal 57470
surface terrain 424 m²
Surface loi Carrez (m²) 97,63 m²
Nombre de chambre(s) 3
Nombre de pièces 5
TRAD_ZEPHYR_Caracteristique TRAD_ZEPHYR_Valeurs
Nb de salle de bains 1
Cuisine Américaine
Type de cuisine Equipée
Mode de chauffage Electrique, Autre
Type de chauffage Au sol, Poêle
Format de chauffage Individuel, Individuel
Terrasse OUI
Murs mitoyens 1
Nombre de garage 1
Nombre de parking 2
Année de construction 2023
TRAD_ZEPHYR_Caracteristique TRAD_ZEPHYR_Valeurs
Copropriété NON
TRAD_ZEPHYR_Caracteristique TRAD_ZEPHYR_Valeurs
Les honoraires d'agence seront intégralement à la charge du vendeur  
Rez de chaussée
entr?e 3.07 m²

salon/sejour 43.72 m²

poêle à pellets

salon/sejour 43.72 m²

poêle à pellets

chambre 12.76 m²

chambre 12.76 m²

chambre 15.52 m²

salle de bain 7.82 m²

fenêtre

WC 1.98 m²

DPE GES
  • Commerces et santé
  • Loisirs
  • Ecoles
  • Transports
  • Pratique
Contacter pour ce bien
L'agence
Téléphone 03 87 29 96 28
Adresse
3 rue du casino 57800 Freyming-Merlebach

* Champ obligatoire

Les informations recueillies sur ce formulaire sont enregistrées dans un fichier informatisé par La Boite Immo agissant comme Sous-traitant du traitement pour la gestion de la clientèle/prospects de l'Agence / du Réseau qui reste Responsable du Traitement de vos Données personnelles. La base légale du traitement repose sur l'intérêt légitime de l'Agence / du Réseau. Elles sont conservées jusqu'à demande de suppression et sont destinées à l'Agence / au Réseau. Conformément à la loi « informatique et libertés », vous disposez des droits d’accès, de rectification, d’effacement, d’opposition, de limitation et de portabilité de vos données. Vous pouvez retirer votre consentement à tout moment en contactant directement l’Agence / Le Réseau. Consultez le site https://cnil.fr/fr pour plus d’informations sur vos droits. Si vous estimez, après avoir contacté l'Agence / le Réseau, que vos droits « Informatique et Libertés » ne sont pas respectés, vous pouvez adresser une réclamation à la CNIL. Nous vous informons de l’existence de la liste d'opposition au démarchage téléphonique « Bloctel », sur laquelle vous pouvez vous inscrire ici : https://www.bloctel.gouv.fr Dans le cadre de la protection des Données personnelles, nous vous invitons à ne pas inscrire de Données sensibles dans le champ de saisie libre.
Ce site est protégé par reCAPTCHA, les Politiques de Confidentialité et les Conditions d'Utilisation de Google s'appliquent.

Découvrir nos outils