Espace propriétaire
fr
Se connecter
Se connecter

Votre recherche

Exclusivité
Coup de coeur
Hombourg-Haut ()

5 pièces - 95,98 m²

Programme neuf pavillon neuf BBC 5 pièces

329 000 €
Ref : 4022 - A
Découvrir le bien

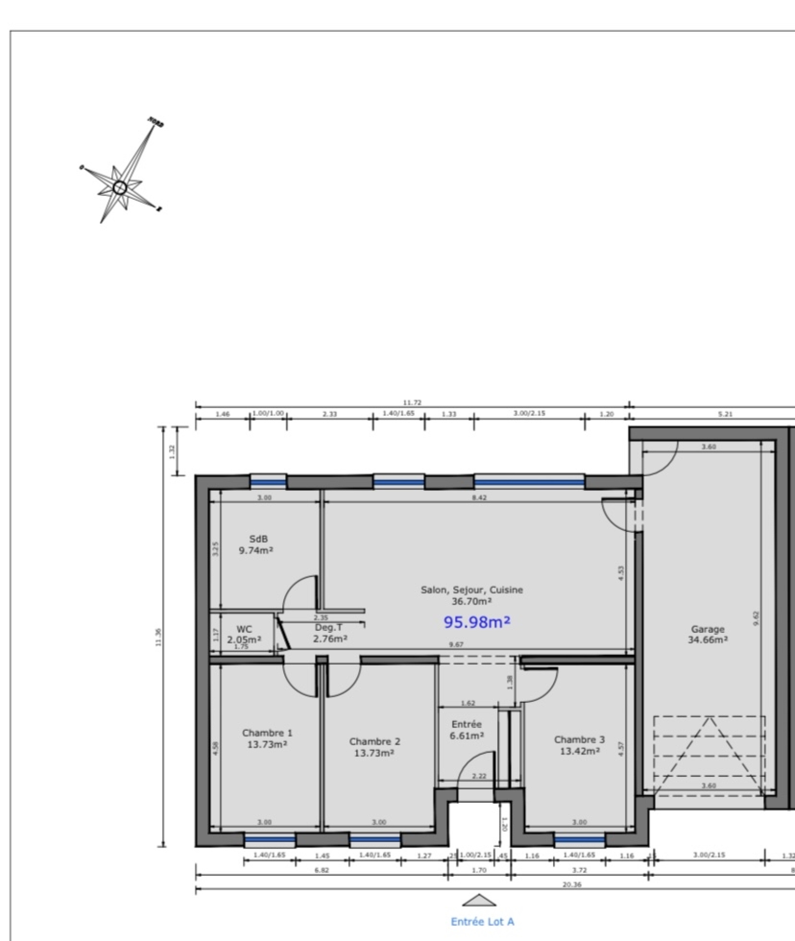
Dans le charmant quartier de la Papiermuhle, venez découvrir ce pavillon neuf de plain pied 95,98m² hab. construit en ossature bois. Entrée, cuisine équipée ouverte sur la pièce de vie lumineuse pourvue d'un poêle à pellets et donnant accès à la terrasse. Côté nuit, vous disposez de trois chambres. La salle de bains est équipée d'une douche à l'italienne. Le wc est séparé. Le garage d'une surface de 34,66m² permet d'aménager la buanderie et accède à l'extérieur. Le chauffage est un plancher chauffant pour tout confort . Ballon thermodynamique pour la production d'eau chaude. Triple vitrage, volets motorisés. Vous bénéficierez des "frais de notaires réduits " soit 2,5%. Côté extérieur, vous profiterez d'une terrasse et d'un jardinet. Sur une parcelle d'environ 376m². "Les informations sur les risques auxquels ce bien est exposé sont disponibles sur le site Géorisques : www.georisques.gouv.fr"

TRAD_ZEPHYR_Caracteristique TRAD_ZEPHYR_Valeurs
surface terrain 376 m²
Surface loi Carrez (m²) 95,98 m²
Nombre de chambre(s) 3
Nombre de pièces 5
TRAD_ZEPHYR_Caracteristique TRAD_ZEPHYR_Valeurs
Nb de salle de bains 1
Cuisine Américaine
Type de cuisine Equipée
Mode de chauffage Electrique, Gaz de ville
Type de chauffage Au sol, Au sol
Format de chauffage Individuel, Individuel
Terrasse OUI
Murs mitoyens 1
Nombre de garage 2
Nombre de parking 2
Année de construction 2023
TRAD_ZEPHYR_Caracteristique TRAD_ZEPHYR_Valeurs
Copropriété NON
TRAD_ZEPHYR_Caracteristique TRAD_ZEPHYR_Valeurs
Prix de vente 329 000 €
Les honoraires d'agence seront intégralement à la charge du vendeur  
Rez de chaussée
salon/sejour 36.7 m²

chambre 13.73 m²

chambre 13.73 m²

chambre 13.42 m²

entr?e 6.61 m²

salle de bain 9.74 m²

WC 2.05 m²

chambre

garage 34.66 m²

degagement 2.76 m²

DPE GES
  • Commerces et santé
  • Loisirs
  • Ecoles
  • Transports
  • Pratique
Contacter pour ce bien
L'agence
Téléphone 03 87 29 96 28
Adresse
3 rue du casino 57800 Freyming-Merlebach

* Champ obligatoire

Les informations recueillies sur ce formulaire sont enregistrées dans un fichier informatisé par La Boite Immo agissant comme Sous-traitant du traitement pour la gestion de la clientèle/prospects de l'Agence / du Réseau qui reste Responsable du Traitement de vos Données personnelles. La base légale du traitement repose sur l'intérêt légitime de l'Agence / du Réseau. Elles sont conservées jusqu'à demande de suppression et sont destinées à l'Agence / au Réseau. Conformément à la loi « informatique et libertés », vous disposez des droits d’accès, de rectification, d’effacement, d’opposition, de limitation et de portabilité de vos données. Vous pouvez retirer votre consentement à tout moment en contactant directement l’Agence / Le Réseau. Consultez le site https://cnil.fr/fr pour plus d’informations sur vos droits. Si vous estimez, après avoir contacté l'Agence / le Réseau, que vos droits « Informatique et Libertés » ne sont pas respectés, vous pouvez adresser une réclamation à la CNIL. Nous vous informons de l’existence de la liste d'opposition au démarchage téléphonique « Bloctel », sur laquelle vous pouvez vous inscrire ici : https://www.bloctel.gouv.fr Dans le cadre de la protection des Données personnelles, nous vous invitons à ne pas inscrire de Données sensibles dans le champ de saisie libre.
Ce site est protégé par reCAPTCHA, les Politiques de Confidentialité et les Conditions d'Utilisation de Google s'appliquent.

Découvrir nos outils